Comercial - 148,400 €, Suburbie, Ialoveni, Moldova
148,400 €,
Suburbie, Ialoveni
Moldova
1
1
74 m2
Agent imobiliar
Contactați-ne
Informație
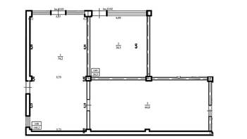
- Suprafața totală 74 m2
- Tip ofertă Vânzare
- Camere 1
- Starea Versiune gri
- Grup sanitar 1
- Tip construcție Nouă
- Tip Magazine
- Etaj 1
- Încălzire autonomă Da
Caracteristici
- Geamuri
- Bar / restaurant / catering
- Supermarket
Descriere
Vă propunem spre vânzare acest spațiu comercial în Ialoveni, str. Moldova, cu suprafața totală de 74 mp.
Compartimentat în: open-space, bloc sanitar.
Dotări și finisaje:
* Geamuri termopan;
* Variantă sură;
* Încălzire autonomă;
* Conectat la toate comunicațiile;
Este în imediată apropiere de: parc, grădiniță, școală, piață, cafenele, bancă, farmacii etc.
Parcare de tip deschis, teren de joacă pentru copii.
Acces facil la transportul public în orice direcție a orașului. (E.N)
Pentru prezentare și alte detalii vizitați www.proimobil.md sau ne contactați!
Prima rată 15%
Sau prin programul guvernamental "Prima Casă" cu doar 10% prima rată

Trade-In
Cu ajutorului programului Trade-In, vă ajutăm să cumpărați acest apartament în schimbul unui alt imobil.

0% comision pentru cumpărători și chiriași

Înregistrare creditului ipotecar gratis!

Deplasarea cu transportul companiei!

Vizualizări
Anunțul dat a fost vizualizat de 18 ori în ultima săptămână.